















































Additional Links:
Virtual Tour!
$495,000
MLS #:
2808715
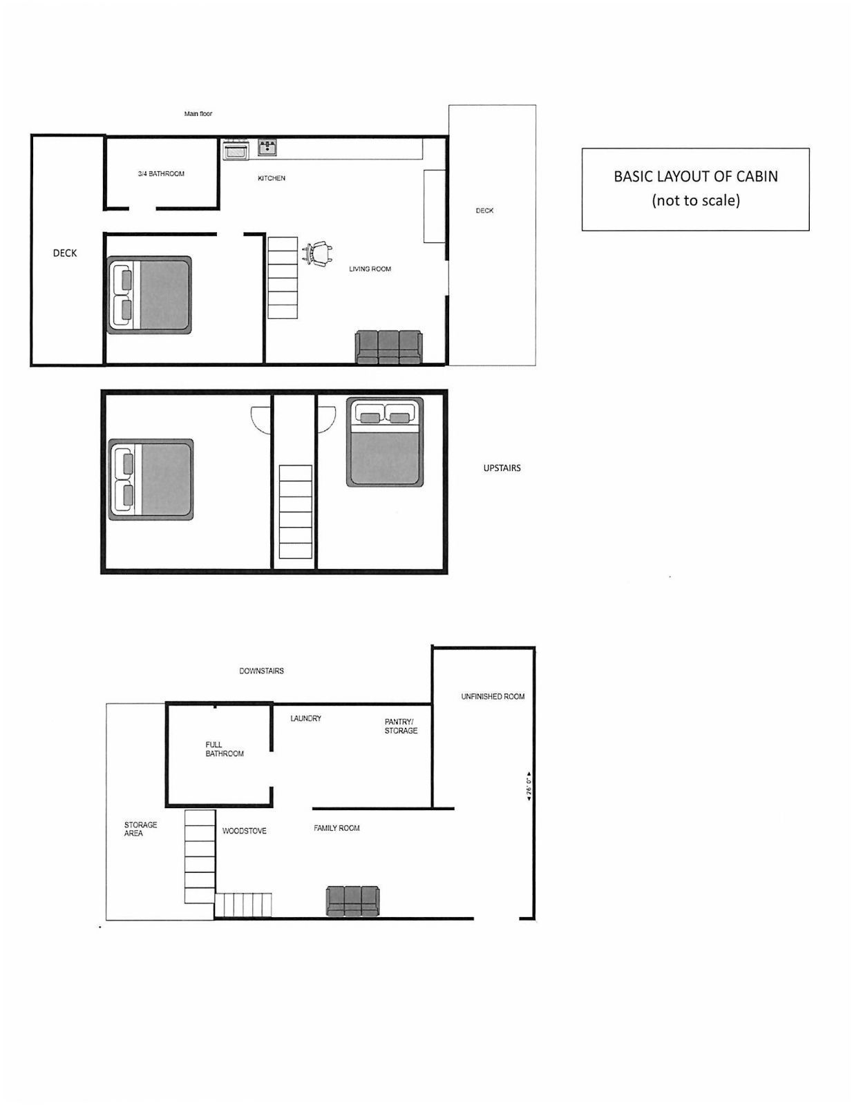
Beds:
3
Baths:
1.75
Sq. Ft.:
1946
Lot Size:
0.64 Acres
Yr. Built:
1977
Type:
Single Family
Single Family - HOA-Yes, CC&Rs-Yes, Site Built Home
Tax/APN #:
25-A-48
Taxes/Yr.:
$1,122
HOA Fees:
$16/month
Area:
Kane County
Subdivision:
Swains Creek
Address:
220 N Grassy Trail
Duck Creek Village, UT 84762
Cabin located in the quiet beauty of Swain's Creek
Don't miss out on this rare find. Imagine sitting on your deck overlooking the meadow with a small creek flowing through as deer graze nearby. This cabin has that and more. This cabin has amazing views and easy access to miles and miles of ATV trails. It also located right in-between two National parks giving easy access for day trips to Bryce Canyon and Zions National Park. Being part of the swain's creek subdivision community, you get to enjoy a private pond that you can fish at, a playground for the kids and community potlucks and bingo nights at the pavilion. This cabin has 3 bedrooms with protentional for a 4th. As a bonus the crawl space has been finished to allow for ample storage that you can be access from inside the house. This is a wonderful place to live and enjoy the beauty of nature. listing agent is the owner of the cabin.
Interior Features:
Ceiling Fans
Cooling: None
Fireplace- Wood
Flooring- Laminate
Heating: Baseboard
Heating: Electric
Heating: Wood Burn. Stove
Wood Burning Stove
Exterior Features:
Borders Creek
Construction: Frame
Construction: Siding-Log
Deck(s) Covered
Deck(s) Uncovered
Foundation: Crawl Space
Roof: Metal
Stream
View of Mountains
Appliances:
Dishwasher
Microwave
Oven/Range
Oven/Range- Electric
Refrigerator
W/D Hookups
Water Heater
Water Heater- Electric
Other Features:
Access- All Year
Assessments Paid
CC&Rs-Yes
HOA-Yes
Legal Access: Yes
Site Built Home
Style: 2 story + basement
Utilities:
Internet: Cable/DSL
Internet: Satellite/Wireless
Phone: Land Line
Power Source: City/Municipal
Septic: Has Permit
Septic: Has Tank
Water Source: City/Municipal
Listing offered by:
Kristine Anderson - License# 12470312-SA00 with Coldwell Banker Majestic Mountain Realty - (435) 682-3688.
Map of Location:
Data Source:
Listing data provided courtesy of: Duck Creek MLS (Data last refreshed: 10/12/25 10:35pm)
- 60
Notice & Disclaimer: Information is provided exclusively for personal, non-commercial use, and may not be used for any purpose other than to identify prospective properties consumers may be interested in renting or purchasing. All information (including measurements) is provided as a courtesy estimate only and is not guaranteed to be accurate. Information should not be relied upon without independent verification.
Notice & Disclaimer: Information is provided exclusively for personal, non-commercial use, and may not be used for any purpose other than to identify prospective properties consumers may be interested in renting or purchasing. All information (including measurements) is provided as a courtesy estimate only and is not guaranteed to be accurate. Information should not be relied upon without independent verification.
More Information

For Help Call Us!
We will be glad to help you with any of your real estate needs.(435) 590-3847
Mortgage Calculator
%
%
Down Payment: $
Mo. Payment: $
Calculations are estimated and do not include taxes and insurance. Contact your agent or mortgage lender for additional loan programs and options.
Send To Friend